Appartements Neufs & Maisons Neuves L'union
L'union A partir de 182 416 € REF: L'28P
Programme immobilier neuf à L'union
| Résidence principale libre ou locatif libre | Locatif sous conditions | |
|---|---|---|
| Prix Libre | LLI | |
|
Appartement T1 De 36 m² à 36 m² |
De 188 000 € à 188 000 € | - |
|
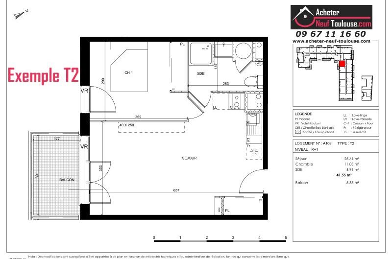
Appartement T2 De 40 m² à 48 m² |
De 199 000 € à 235 000 € | 182 416 € |
|
Appartement T3 De 62 m² à 64 m² |
De 272 000 € à 285 000 € | 256 666 € |
|
Appartement T4 De 82 m² à 89 m² |
De 355 000 € à 368 000 € | 325 416 € |
|
Appartement T5 De 100 m² à 100 m² |
De 376 000 € à 376 000 € | 344 666 € |
|
Maison - 4 pièces De 92 m² à 92 m² |
De 368 000 € à 368 000 € | - |
|
Maison - 5 pièces De 114 m² à 126 m² |
De 415 000 € à 435 000 € | - |
Vous achetez en résidence principale ?
Simulateur Prêt Taux Zéro
Investissement ?
Simulateur Jeanbrun
Programme immobilier neuf Toulouse L'Union : vivre entre sérénité résidentielle et dynamisme métropolitain
Choisir un programme immobilier neuf l'union, c’est profiter d’un cadre de vie recherché aux portes de la Ville Rose. Située au nord-est de Toulouse, la commune de L'Union séduit par son équilibre entre tranquillité résidentielle, proximité urbaine et qualité des infrastructures.
À seulement quelques minutes du centre de Toulouse, L’Union attire de nombreux habitants à la recherche d’un environnement plus paisible, tout en conservant un accès rapide aux grands pôles d’activité de la métropole.
Toulouse : une métropole dynamique et attractive
S’installer dans un programme immobilier neuf l'union, c’est bénéficier du rayonnement d’une agglomération parmi les plus attractives de France. Toulouse se distingue par sa croissance démographique, son économie innovante et son tissu universitaire de premier plan.
Capitale européenne de l’aéronautique et du spatial, la ville accueille de nombreuses entreprises internationales ainsi qu’un bassin d’emplois solide et diversifié. Son marché immobilier reste particulièrement dynamique, notamment dans les communes de première couronne comme L’Union.
L’Union : une commune recherchée aux portes de Toulouse
Avec environ 12 000 habitants, L'Union offre un cadre de vie apprécié pour son atmosphère résidentielle et familiale. Son urbanisme maîtrisé, composé de quartiers pavillonnaires arborés et de rues calmes, renforce son attractivité.
Ce programme immobilier neuf l'union bénéficie d’une localisation stratégique sur l’avenue des Pyrénées, dans un secteur connecté et proche de toutes les commodités.
La commune séduit également par son relief légèrement vallonné et, selon les perspectives, par ses vues dégagées vers la chaîne des Pyrénées.
Un environnement pratique et complet
L’un des grands atouts d’un programme immobilier neuf l'union réside dans la qualité de son bassin de vie. Les habitants disposent de nombreux commerces et services accessibles rapidement :
- Boulangerie, boucherie, cave à vin, opticien, coiffeur
- Supermarchés à proximité
- Marché de plein vent
- Pharmacies et professions médicales
- Services administratifs et mairie
Cette proximité permet un quotidien confortable, où la majorité des besoins essentiels peuvent être satisfaits sans longs déplacements.
Une commune idéale pour les familles
L’Union dispose d’une offre éducative complète, particulièrement appréciée des familles :
- Crèches et halte-garderies
- Écoles maternelles et élémentaires
- Collège à proximité
- Lycées accessibles rapidement
Les infrastructures sportives et culturelles viennent compléter cet environnement qualitatif :
- Piscine municipale
- Bibliothèque
- Cinéma Cinéma Le Lumière
- Maison des sports
- Associations nombreuses
Une accessibilité optimale
Ce programme immobilier neuf l'union bénéficie d’une excellente desserte :
- Bus ligne 42 (arrêt Menton à proximité)
- Bus ligne 43 (arrêt Vallauris à proximité)
- Accès rapide à la rocade toulousaine
- Autoroute A68 à seulement quelques minutes
- Gare Gare de Toulouse-Matabiau accessible rapidement
- Aéroport Toulouse-Blagnac à environ 20 minutes
Cette situation géographique stratégique facilite les trajets quotidiens vers Toulouse, les zones d’emploi et les grands axes régionaux.
Une résidence contemporaine et végétalisée
Ce programme immobilier neuf l'union propose un ensemble résidentiel à taille humaine, parfaitement intégré dans son environnement.
L’architecture associe modernité et codes régionaux avec :
- Toitures en tuiles traditionnelles rouges
- Façades aux teintes claires et naturelles
- Parements de briquettes
- Menuiseries gris anthracite
Les espaces paysagers occupent une place importante, créant une ambiance résidentielle sereine et élégante.
Appartements, duplex et maisons de ville
La résidence se compose de :
- 42 appartements et duplex du T1 bis au T5
- 4 maisons de ville T4 et T5
Cette diversité permet de répondre à tous les projets immobiliers : premier achat, résidence principale familiale ou investissement locatif.
Certains logements bénéficient d’aménagements en duplex, offrant des volumes généreux et une sensation d’espace recherchée.
Des prestations de qualité
Les logements de ce programme immobilier neuf l'union proposent :
- Porte d’entrée sécurisée 3 points
- Placards aménagés
- Salle de bains équipée avec meuble vasque et sèche-serviettes
- Carrelage grand format
- Sol stratifié dans les chambres
- Volets roulants électriques
- Chauffe-eau thermodynamique
- Balcons et terrasses en lames bois
Les duplex et maisons bénéficient également de prestations complémentaires :
- Pompe à chaleur air/air
- Jardin privatif selon plan
- Porte de garage
- Escalier intérieur qualitatif
Un investissement durable
Conforme à la réglementation RE2020, ce programme immobilier neuf l'union allie performance énergétique, confort moderne et potentiel patrimonial durable.
- mixité maison appartement
- commune côtée

Intéressé par ce programme ?
Appartements Neufs & Maisons Neuves L'union
3ème Tr. 2028, dès 182 416 €






































