Maisons Neuves Pompertuzat
Pompertuzat A partir de 249 000 € REF: PO27C
Programme immobilier neuf à Pompertuzat
| Résidence principale libre ou locatif libre | Résidence principale sous conditions | |
|---|---|---|
| Prix Libre | BRS | |
|
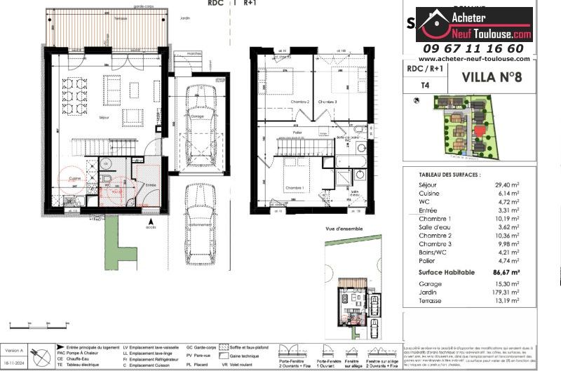
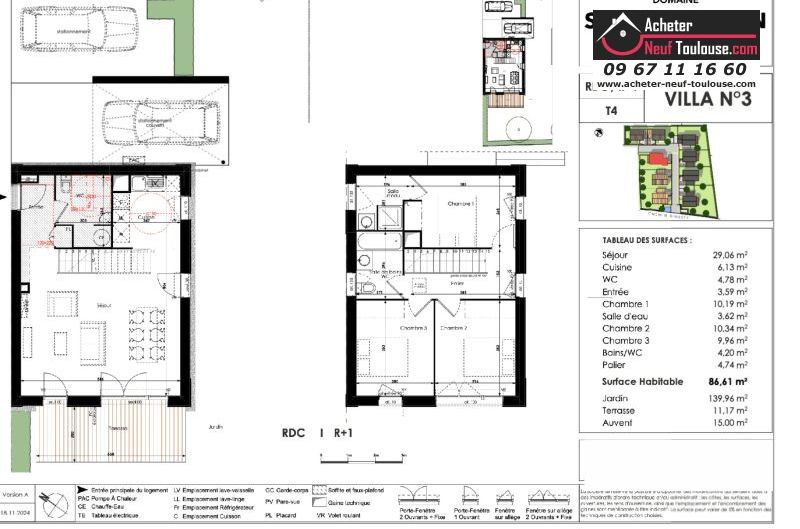
Maison - 4 pièces De 87 m² à 87 m² |
De 364 500 € à 369 000 € | 249 000 € |
Vous achetez en résidence principale ?
Simulateur Prêt Taux Zéro
Investissement ?
Simulateur Jeanbrun
Située au sud de Toulouse, Pompertuzat est une charmante commune de la vallée de l’Hers, offrant un cadre de vie paisible entre nature et dynamisme urbain.
Ce village recherché séduit par son authenticité, ses commerces de proximité, ses écoles et son accès rapide à la métropole toulousaine grâce à la rocade et à l’autoroute A61.
Entourée de collines verdoyantes et traversée par le canal du Midi, Pompertuzat allie douceur de vivre et confort moderne, idéale pour les familles comme pour les actifs en quête de sérénité.
Dans ce cadre privilégié, un nouveau programme de maisons neuves à pompertuzat voit le jour. Ces habitations contemporaines, lumineuses et parfaitement agencées, offrent de beaux volumes et des prestations de qualité : jardins privatifs, garages, et finitions soignées.
Chaque maison a été pensée pour maximiser le confort et l’efficacité énergétique, dans le respect des normes RE2020.
Ce projet allie esthétique, fonctionnalité et environnement, pour une vie quotidienne agréable au cœur d’un quartier résidentiel calme et verdoyant.
Nous contacter
- programme de maisons
- éligible BRS

Intéressé par ce programme ?
Maisons Neuves Pompertuzat
4ème Tr. 2027, dès 249 000 €




















